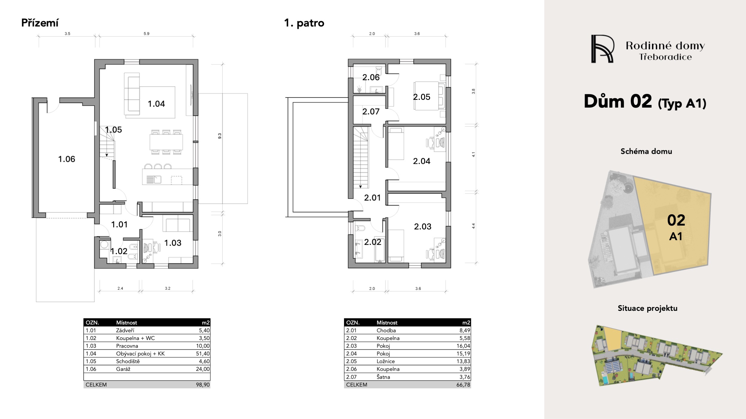
Dům č. 02 (typ A1)
- 22 260 000CZK
Popis
Objevte moderní a komfortní bydlení v klidné rezidenční čtvrti Třeboradice, která kombinuje výhody života v přírodě s vynikající dostupností do centra města. Nový developerský projekt nabízí nízkoenergetické rodinné domy s vlastní zahradou, ideální pro rodiny s dětmi a páry hledající dlouhodobé bydlení.
Klíčové výhody:
Dispozice 4+kk a 5+kk s promyšleným uspořádáním
Vlastní zahrady a parkování u domu
Kvalitní materiály a moderní technologie (podlahové vytápění, příprava pro fotovoltaiku)
Klidná lokalita s občanskou vybaveností v docházkové vzdálenosti (mateřská škola, obchod, MHD)
Rychlé spojení do centra Prahy (metro Letňany 10 minut autem)
Lokalita:
Třeboradice jsou součástí městské části Praha 9 – Čakovice. Díky kombinaci přírody, klidu a dostupnosti veškerých služeb je to ideální místo pro rodinný život bez kompromisů.
Adresa
Otevřít v Mapách Google-
Adresa: Třeboradice, Praha, obvod Praha 9
-
Město: Praha
-
PSČ: 19600
-
Oblast: Třeboradice
-
Země: Česko
Detaily
Updated on 4 listopadu, 2025 at 8:03 am-
Cena 22 260 000CZK
-
Podlahová plocha 171,40 m2
-
Plocha pozemku 496 m2
-
Ložnice 3
-
Koupelny 2
-
Garáž 1
-
Velikosti garáže 20 m2
-
Rok dokončení Q1 / 2027
-
Typ nemovitosti Dvojdům
-
Stav Prodáno












